Коттедж, Строительная, 23 Показать на карте
Яхрома
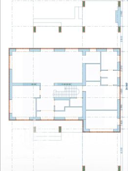
Номер объекта: 537994. Дом в черте города Яхрома!Одноэтажный дом с панорамным остеклением, потолком ''в конёк'', в 5 минутах от центра г. Яхрома, примыкает к парковой территории, в уютной застройке на 19 домов (без ежемесячных платежей! ) .Продажа от застройщика — возможна семейная ипотека! Возможна рассрочка!Инфраструктура:В шаговой доступности: парковая зона для прогулок, храм, автобусная остановка, супермаркет. В 5-7 минутах на автомобиле (2-е остановки на автобусе) вся городская инфраструктура (г. Яхрома) : больница, школы, дет сады (государственные и частные) , бассейн ''Кашалот'', храм, супермаркеты, пекарни, кофейни, пункты выдачи Вайлдберриз, Озон, Яндекс маркет.В 15 минутах — горнолыжные курорты ''Яхрома'', ''Волен'', ''Сорочаны'', ''Степаново'' и г. Дмитров так же с развитой инфраструктурой кинотеатрами, ресторанами, школами, садами, гиперамаркетами и торговыми центрами.Функциональная планировка:Кухня-гостиная-столовая единое пространство с выходом на террасу, мастер-спальня (хозяйская) со своим с/у, 2 спальни, су, бойлерная.Конструктив:Фундамент — монолитная плита, стены — газоселикатный блок утеплитель, крыша — натуральная черепица.Коммуникации: газ, электричество 15 кВт, вода — скважина на участке, канализация- система биологической отчисти.Отличная транспортная доступность, как на автомобиле, так и общественным транспортом.Возможен проезд по дмитровскому шоссе, рогачевскому шоссе или платная трасса М-11 на автомобиле, либо на автобусах до станции Яхрома (15-20 минут) и на электричке до Савеловского вокзала.
150 м2
1 этаж
- Показать контакты
- Добавить в избранное
150 м2
1 этаж
15 500 000
103 333 /м2
