Если цена в объявлении изменится, мы сразу сообщим вам об этом на электронную почту.
Нажимая «Подписаться», вы соглашаетесь с правилами.
продам 3-к, Парковая, 89 600 000 ₽
29 янв
Дата публикации объявления
Обн. 1 фев
Дата обновления объявления
122 762 ₽/м²
Чистая продажа
Термин "Чистая продажа" означает, что в квартире никто не прописан или
есть куда выписаться и вывезти вещи. Это лучший вариант для покупателя.
Вероятность срыва сделки минимальна.
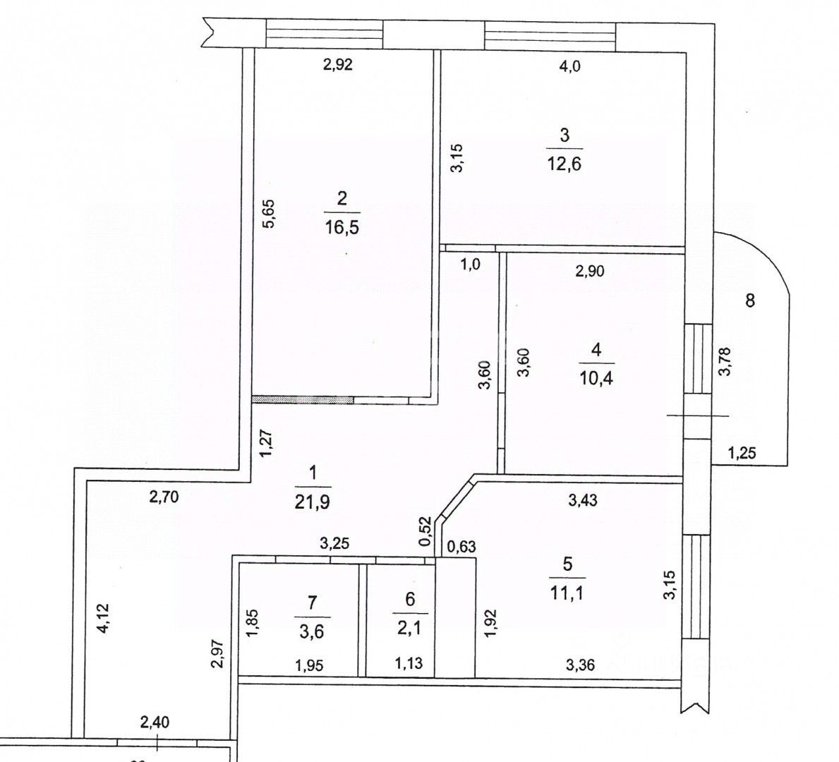
Арт. 129169626 Продается просторная 3-х комнатная квартира с качественным ремонтом и удобной планировкой. Квартира расположена по адресу: Московская область, Дмитровский район, гор. Яхрома, ул. Парковая, д. 8. Дом теплый, блочный, Удобный 7 этаж красивым видом из окон - во двор и на улицу. Общая площадь квартиры 78, 2 кв.м.
Планировка квартиры позволит с комфортом проживать даже большой семье. Прихожая 9,9 кв.м. переходит в холл 8,4 кв.м. Холл по сути может использоваться как гостиная или проходная комната. В квартире 3 изолированные комнаты 16,5 кв.м., 12,6 кв.м., 10,4 кв.м. (эта комната с выходом на застекленный балкон площадью 4,3 кв.м. Кухня 11,1 кв.м. Раздельный санузел 3,6 кв.м. + 2,1 кв.м.
Арт. 129169626 Продается просторная 3-х комнатная квартира с качественным ремонтом и удобной планировкой. Квартира расположена по адресу: Московская область, Дмитровский район, гор. Яхрома, ул. Парковая, д. 8. Дом теплый, блочный, Удобный 7 этаж красивым видом из окон - во двор и на улицу. Общая площадь квартиры 78, 2 кв.м.
Планировка квартиры позволит с комфортом проживать даже большой семье. Прихожая 9,9 кв.м. переходит в холл 8,4 кв.м. Холл по сути может использоваться как гостиная или проходная комната. В квартире 3 изолированные комнаты 16,5 кв.м., 12,6 кв.м., 10,4 кв.м. (эта комната с выходом на застекленный балкон площадью 4,3 кв.м. Кухня 11,1 кв.м. Раздельный санузел 3,6 кв.м. + 2,1 кв.м.
Выполнен красивый, современный, дорогостоящий ремонт. Квартира очень теплая и светлая. Мебель и техника остаются по согласованию. На кухне установлен котел, позволяющий регулировать отопление в квартире. В доме индивидуальное отопление. Квартира полностью готова к проживанию и не требует никаких вложений.
Отличная инфраструктура и транспортная доступность района. Напротив дома парк им. Лямина, на первом этаже дома расположены магазины. В непосредственной близости школа, детский сад, остановка общественного транспорта, аптеки, медучреждения. До центра города 2 минуты на авто. Удобное автобусное сообщение с Москвой (рейс 401 Яхрома -Москва, м. Алтуфьево). Рядом с городом множество спортивных парков: ''Волен'', парк ''Яхрома'', ''Сорочаны'', горнолыжный клуб Леонида Тягачева, ''Степаново''.