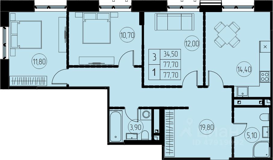
Продаётся 3-комнатная квартира в строящемся доме (Корпус Б), срок сдачи: II-кв. 2026, общей площадью 77.7 кв.м., на 21 этаже. Новый проект от ГК ''Профи Инвест'' - Жилой комплекс ''7 небо'' будет расположен в районе улицы Писаревской в зеленом центре города Пушкино, Московской области.
Архитектурной концепцией проекта предусмотрен тандем двух разноуровневых башен (18 и 28 этажей) с максимальной высотой в 95 метров над уровнем моря, размещенных на стилобатном основании с эксплуатируемой кровлей и двухэтажным подземным паркингом на 313 машиномест.
Жилой комплекс, являясь самым высоким сооружением в Пушкинском городском округе, позволит жильцам наслаждаться видами города Пушкино и его окрестностей как ''на ладони''.






